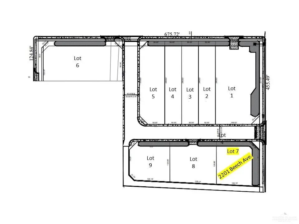
2201 Beech Avenue, McAllen, TX

$264,460

Previous Next

18,890

Square feet

0.43

Acres

About 2201 Beech Avenue

Discover the ultimate commercial opportunity at 2201 Beech Ave, McAllen, TX! This specific lot #7, spanning 0.43 acres (18,890 sq ft), offers unmatched potential for warehouse development. Fully developed and improved with sewer, water, and electricity, these lots are ready for you to bring your project to life and start building. With 9 lots available in various sizes, seize the chance to build your ideal warehouse and capitalize on the booming demand in this thriving business hub. Perfectly situated with easy access to major transportation routes and surrounded by a flurry of commercial activity, these lots present an irresistible investment opportunity. Don't miss your chance to be part of McAllen's dynamic landscape – seize this opportunity now and unlock the door to limitless possibilities!

Features of 2201 Beech Avenue

MLS® # 427927
Price $264,460
Square Footage 18,890
Acres 0.43
Type Land
Sub-Type Commercial
Status Active

Community Information

Address 2201 Beech Avenue
Subdivision Gosmar
City McAllen
County Hidalgo
State TX
Zip Code 78501

Amenities

Utilities City Garbage, Water Connected, Sewer Connected
Is Waterfront No
Water Supplier Public, City
Sewer City Sewer
Community Amenities None

Exterior

Lot Description Irregular Lot

School Information

District McAllen ISD
Elementary Wilson
Middle Travis
High McAllen H.S.

Additional Information

Zoning C3
Foreclosure No
Short Sale No
Present Use Commercial, Improved
Zoning C3
Annual Tax $2
Suitable Use Commercial
Crops None
Land Access Paved Road, Paved
HOA Association No

Listing Details

AgentLeslie J. De Leon
OfficeAbolengo Properties LLC
Contact Info956-328-6967

Listing Map

Request a Showing

Provide a valid email address.
When would you like to view this property?